Местоположение
Ленинградская область, Гатчинский район, Коммунар, Ново-Антропшинская улица
Тип дома
Монолитно-кирпичный
Варианты отделки
Предчистовая, черновая, чистовая
Парковка
Отдельная многоуровневая, гостевая
Дата сдачи2014—2024
Класс домаЭконом
Этажностьот 3 до 9
Кол-во корпусов17 корпусов
Тип домаМонолитно-кирпичный
Высота потолков2,66 м
ОтделкаПредчистовая, черновая, чистовая
Объекты на территории жилого комплекса
Пункты бытового обслуживания
Парковка
Без очереди
4 квартал 2014Дом 3
3 квартал 2016Дом 9
4 квартал 2016Дом 1
3 квартал 2017Дом 9
4 квартал 2017Дом 5
2 квартал 2018Дом 7
4 квартал 2019Дом 8
4 квартал 2020Дом 6к1 (Корпус 18а), Дом 6 (Корпус 18б)
4 квартал 2021Дом 8к1 (Корпус 32)
1 квартал 2022Дом 8к3 (Корпус 33), Дом 8к2 (Корпус 31), Дом 8 (Корпус 30)
1 квартал 2023Дом 5 (корпус 6)
3 квартал 2023Корпус 7А (4.3)
4 квартал 2023Корпус 7Б (4.4)
1 квартал 2024Корпус 8 (4.2)
О жилом комплексе «Ново-Антропшино»
ЖК Ново-Антропшино — современный комплекс в стиле «Urban village». Он сочетает в себе преимущества городской и загородной жизни.
Достоинства ЖК:
- возможность жить в окружении живописной природы и пользоваться всеми благами цивилизации;
- доступ к приятным прогулкам на свежем воздухе в любое время года;
- удобная возможность завести и содержать домашних животных;
- развитая инфраструктура для активного досуга и регулярных занятий спортом (спортивные площадки, пешие дорожки);
- удобная транспортная развязка: в пешей доступности ж/д станция, остановки автобусов, маршруток;
- свободные места для стоянки автомобилей;
- развитая социальная инфраструктура: 3 школы в Коммунаре и ожидается сдача детского сада на территории комплекса.
Квартиры предлагаются в трех вариантах отделки: предчистовая, чистовая и с полным оснащением, куда входит мебель, техника, посуда и текстиль.
-
Корпус сдан в IV-кв. 2021
Дом 8к2 (Корпус 31)
Сдан
26,4 м²
3,9 млн ₽
Корпус 7Б (4.4)
4 кв, 2023
28,0 м²
3,9 млн ₽
Корпус 7Б (4.4)
4 кв, 2023
28,3 м²
4,3 млн ₽
Дом 8к2 (Корпус 31)
Сдан
30,0 м²
4,6 млн ₽
Дом 5 (корпус 6)
Сдан
31,8 м²
4,7 млн ₽
Корпус 8 (4.2)
1 кв, 2024
37,1 м²
4,6 млн ₽
Дом 8к2 (Корпус 31)
Сдан
38,4 м²
5,3 млн ₽
Корпус 7Б (4.4)
4 кв, 2023
39,2 м²
5,6 млн ₽
Корпус 7Б (4.4)
4 кв, 2023
44,5 м²
6,4 млн ₽
Корпус 8 (4.2)
1 кв, 2024
45,9 м²
5,1 млн ₽
Корпус 8 (4.2)
1 кв, 2024
55,5 м²
6,3 млн ₽
Дом 8к2 (Корпус 31)
Сдан
56,9 м²
7,9 млн ₽
Дом 8к2 (Корпус 31)
Сдан
57,2 м²
7,7 млн ₽
Корпус 7Б (4.4)
4 кв, 2023
67,2 м²
9,2 млн ₽
Корпус 7Б (4.4)
4 кв, 2023
68,2 м²
9,4 млн ₽
Есть корпуса, проверенные на надежность
Узнать больше
Есть корпуса со сделкой с эскроу–счётом
Узнать больше
Ипотечные предложения и аккредитованные банки
Банки и застройщики
Ставка
Сумма
Срок
Ежемесячный платёж

Ипотека для ИТ-специалистов
Росбанк
4,45%до 18 млн ₽—от 16 288 ₽/мес

Льготная ипотека для IT-специалистов
Совкомбанк
5%до 18 млн ₽—от 17 063 ₽/мес

Ипотека для IT-специалистов до 5%
Господдержка
5%до 18 млн ₽30 летот 17 063 ₽/мес

Семейная ипотека до 6%
Господдержка
6%до 12 млн ₽30 летот 18 523 ₽/мес

Льготная ипотека до 8%
Господдержка
8%до 18 млн ₽30 летот 21 626 ₽/мес
Показать еще 1 предложений
Цены и спрос
Количество комнат
Студии12
Период
ПолгодаГодВсё время
Стоимость
За квартируЗа м²
Средняя цена за квартиру9,2 млн ₽
Средняя цена м²154 702 ₽/м²
Изменение цены м² за полгода24%
Данные собираются раз в месяц, последнее обновление: март 2023
Плюсы:
Купил квартиру в апреле и удивлен как хорошо сделали отделку.
Все нравиться, квартплата не большая! Сделали хорошую площадку между 3-х этажками.
Минусы:
Побольше бы инфраструктуры, но я думаю район развивается и что-то еще добавят.
Плюсы:
Плюс, что рядом жд станция.
Минусы:
От города далеко, никакой инфраструктуры. На счет экологии сомнительно. Завышенная цена для Лен. области. Прописка Областная это жирный минус и цена за квадрат должна быть соответствующая.
Река Ижора
Расстояние от комплекса:
21 мин.
-
Чистовая
-
Предчистовая
-
Черновая
Группа компаний «Запстрой» выступает в качестве девелопера, заказчика, застройщика и генерального подрядчика. Имеет опыт строительства как коммерческих помещений, так и жилых домов.
На данный момент девелопер занимается строительством жилья эконом-класса на территории Ленин…
Узнать больше о застройщике
Надёжность корпусов проверена по 7 критериям надежности
Не выявлено фактов банкротства застройщика
Полный комплект документов на ЕИСЖС
Компании нет в реестре проблемных застройщиков
Актуальная версия проектной декларации
Имеется действующее разрешение на строительство
Актуальные фотографии хода строительства
Перенос плановых сроков строительства — не более 2 раз на срок до 2 месяцев
Статус надёжности присвоен корпусам:
Безопасная сделка с эскроу-счётом
Покупатель квартиры в строящемся доме после заключения договора с застройщиком открывает эскроу-счет в банке. Застройщик получит деньги только после завершения строительства. Если этого не произойдёт — покупатель получает деньги назад.
-
ЖК «Тандем»
от 2,9 млн ₽ за студию 26,4 м²
Ленинградская область, Всеволожский район, Имени Свердлова пгт, 1-й микрорайон
-
Сдача в 2—4 кв. 2023, есть сданные
ЖК «Новое Сертолово»
от 5,32 млн ₽ за студию 27,3 м²
Ленинградская область, Всеволожский район, Сертоловское городское поселение, поселок Сертолово-2, Мира ул.
-
ЖК «Графика»
от 3,85 млн ₽ за студию 21,5 м²
Ленинградская область, Всеволожский район, Мурино, Екатерининская улица
-
ЖК «Стороны света»
от 3,55 млн ₽ за студию 26,32 м²
Ленинградская область, Всеволожский район, посёлок Бугры
-
ЖК «Pixel (Пиксель)»
от 2,82 млн ₽ за студию 25,5 м²
Ленинградская область, Гатчинский район, Коммунар, Железнодорожная улица
-
ЖК «Новая история»
от 2,85 млн ₽ за студию 21,32 м²
Ленинградская область, Всеволожский район, Сертолово, Верная улица
-
ЖК «Капральский»
от 3,15 млн ₽ за студию 21,03 м²
Ленинградская область, Всеволожский район, деревня Новое Девяткино, Лесная улица
-
Сдача в 2023—2026, есть сданные
ЖК «Энфилд»
от 4,47 млн ₽ за студию 25,11 м²
Ленинградская область, Всеволожский район, посёлок Бугры, аллея Ньютона
-
Сдача в 4 кв. 2023, есть сданные
ЖК «Ювента»
от 3,15 млн ₽ за студию 22,45 м²
Ленинградская область, Всеволожский район, Бугровское сельское поселение, поселок Бугры, Полевая улица
-
ЖК «ЛесART (ЛесАРТ)»
от 4,51 млн ₽ за студию 25,9 м²
Ленинградская область, Ломоносовский район, пос. Новоселье, Рябиновая улица
-
ЖК «Левитан»
от 3,34 млн ₽ за студию 24,88 м²
Ленинградская область, Всеволожский район, Мурино, Оборонная улица
-
Сдача в 2—4 кв. 2024, есть сданные
ЖК «Город Первых»
от 3,56 млн ₽ за студию 28,06 м²
Ленинградская область, Всеволожский район, Свердловское городское поселение, деревня Новосаратовка
Источники фото: http://ru.natalia-tour.com, http://s4.fotokto.ru, https://pbs.twimg.com, https://pp.userapi.com, https://static.tonkosti.ru.
Квартиры в Квартале «Ново-Антропшино»

Этаж 9 /9
ЛО, Квартал «Ново-Антропшино»
Купчино в 30 мин. на транспорте

Этаж 2 /9
ЛО, Квартал «Ново-Антропшино»
Купчино в 30 мин. на транспорте

Этаж 3 /3
ЛО, Квартал «Ново-Антропшино»
Купчино в 30 мин. на транспорте

Этаж 1 /3
ЛО, Квартал «Ново-Антропшино»
Купчино в 30 мин. на транспорте
Посмотреть
все 66 однокомнатные квартиры в Квартал «Ново-Антропшино»

Этаж 5 /9
ЛО, Квартал «Ново-Антропшино»
Купчино в 30 мин. на транспорте

Этаж 7 /9
ЛО, Квартал «Ново-Антропшино»
Купчино в 30 мин. на транспорте

Этаж 5 /9
ЛО, Квартал «Ново-Антропшино»
Купчино в 30 мин. на транспорте

Этаж 2 /9
ЛО, Квартал «Ново-Антропшино»
Купчино в 30 мин. на транспорте
Посмотреть
все 19 двухкомнатные квартиры в Квартал «Ново-Антропшино»

Этаж 5 /9
ЛО, Квартал «Ново-Антропшино»
Купчино в 30 мин. на транспорте

Этаж 7 /9
ЛО, Квартал «Ново-Антропшино»
Купчино в 30 мин. на транспорте

Этаж 5 /9
ЛО, Квартал «Ново-Антропшино»
Купчино в 30 мин. на транспорте

Этаж 5 /9
ЛО, Квартал «Ново-Антропшино»
Купчино в 30 мин. на транспорте
Посмотреть
все 69 квартиры-студии в Квартал «Ново-Антропшино»
Квартал «Ново-Антропшино» на карте
Как проехать
Метро «Купчино» → Пройти пешком менее 100 метров (1 минута) → Станция Купчино → Электрички до станций Поселок, Оредеж, Семрино, Вырица (28 минут) → Станция Антропшино → Пройти пешком 290 метров (3 минуты)
Ж/д станция «Антропшино» → Пройти 20 минут пешком или проехать 5 минут на любом маршрутном такси
Инфраструктура
Просторная территория квартала разделена на несколько участков. На одном из них застройщик предусмотрен современный детский сад, рассчитанный на 150 малышей, и обеспеченный
собственным двориком для прогулок. Корпуса соединены между собой сетью автомобильных проездов и пешеходных тротуаров, для автотранспорта оборудована система наземных и подземных парковок. В генеральном плане развития квартала предусмотрено возведение отдельно стоящих помещений, где расположатся объекты сервисно-бытовой
инфраструктуры, а часть магазинов и сервисных организаций уже открыты на первых этажах жилых домов.
Во дворах продуманы масштабные проекты по благоустройству с организацией рекреационных и прогулочных зон. Большая часть пространства засажена газонами и декоративными
клумбами и украшена малыми архитектурными формами, а для активного отдыха застройщик установил игровые и спортивные площадки с безопасными покрытиями.
Жильцам новостройки доступна вся инфраструктура города Коммунар, где работают медицинские учреждения, детсады и школы, супермаркеты, спортивные объекты, развлекательные заведения, филиалы банков и службы быта.
Отзывы о Квартале «Ново-Антропшино»
Самый полезный отзыв
Самый новый отзыв
Вопросы и ответы о Квартал «Ново-Антропшино»
Задать вопрос
Напишие свой вопрос ниже — заполнив личные данные или
войдите на сайт,
тогда информация будет автоматически взята из личного профиля.
Похожие новостройки Ленинградской области по цене
от 3.4 млн ₽

Ленинградская область, Всеволожский район

Ленинградская область, Всеволожский район

Ленинградская область, Всеволожский район

Ленинградская область, Приозерский район

Ленинградская область, Аннинское

Ленинградская область, Всеволожский район

Ленинградская область, Мурино

Ленинградская область, Дубровское городское поселение

Ленинградская область, Всеволожский район

Ленинградская область, Мурино
ЖК «Ново-Антропшино»
нет оценок
Квартиры в продаже в ЖК «Ново-Антропшино»
393 квартиры от застройщика от 3,26 млн ₽, в среднем 137.000 ₽ за м2
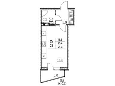
| Студии | 24.13 м2 — 31.78 м2 | от 3 257 000 ₽ | 166 квартир |
| 1-комнатные | 30.83 м2 — 45.02 м2 | от 4 070 000 ₽ | 136 квартир |
| Евродвушки | 34.12 м2 — 45.94 м2 | от 4 633 000 ₽ | 33 квартиры |
| 2-комнатные | 55.54 м2 — 68.18 м2 | от 6 387 000 ₽ | 27 квартир |
| Евротрёшки | 55.93 м2 — 56.58 м2 | от 6 394 000 ₽ | 7 квартир |
О жилом комплексе
Для этого объекта пока ещё не добавлено описание, но вы можете его добавить
Действующие скидки и акции от застройщика
Расположение
4 очередьКорпус 18 — Сдан
6 очередьКорпус 32 — СданКорпус 33 — Сдан
5 очередьКорпус 30 — СданКорпус 31 — Сдан
7 очередьКорпус 4.1 — Сдан
8 очередьКорпус 4.3 — III кв. 2023
3 очередьКорпус 19 — Сдан
9 очередьКорпус 4.4 — IV кв. 2023
10 очередьКорпус 4.2 — I кв. 2024
Оцените расположение
12345678910
Записаться на просмотр ЖК
Ипотека
Стоимость квартиры
Первоначальный взнос
Срок кредита
Преимущества (3)
Недалеко ЖД станция Антропшино
Невысокое строительство
Рядом много зелени
Недостатки (3)
Далеко до метро
Рядом ЖД пути
Без отделки
Планировки и цены ЖК «Ново-Антропшино»
на 21 марта 2023 г.
| Планировки (109) | Комнат | Корпус | Этаж | Общая площадь | Цена за м2 | Цена квартиры |
|---|---|---|---|---|---|---|
Студии |
|
|
||||
| Смотреть
|
Студия | 10 очередь. Корпус 4.2 I кв. 2024 |
Этаж 2 | 24,49 м2 | Запросить цену | |
| Смотреть
|
Студия | 10 очередь. Корпус 4.2 I кв. 2024 |
Этаж 93, 4, 657 | 24,14 м2 | Запросить цену | |
| Смотреть
|
Студия | 10 очередь. Корпус 4.2 I кв. 2024 |
Этаж 2 | 24,57 м2 | Запросить цену | |
| Показать всеСмотреть
|
Студия | 10 очередь. Корпус 4.2 I кв. 2024 |
Этаж 3, 95 | 24,13 м2 | Запросить цену | |
| Смотреть
|
Студия | 10 очередь. Корпус 4.2 I кв. 2024 |
Этаж 2 | 24,70 м2 | Запросить цену | |
| Смотреть
|
Студия | 10 очередь. Корпус 4.2 I кв. 2024 |
Этаж 5 | 24,30 м2 | Запросить цену | |
| Смотреть
|
Студия | 10 очередь. Корпус 4.2 I кв. 2024 |
Этаж 2 | 25,07 м2 | Запросить цену | |
| Смотреть
|
Студия | 7 очередь. Корпус 4.34.4 III кв. 2023 |
Этаж 2, 4, 5, 6, 97 | 26,41 м2 | Запросить цену | |
| Смотреть
|
Студия | 8 очередь. Корпус 4.4 IV кв. 2023 |
Этаж 5, 6 | 24,25 м2 | Запросить цену | |
| Смотреть
|
Студия | 7 очередь. Корпус 4.34.4 III кв. 2023 |
Этаж 5, 6 | 24,31 м2 | Запросить цену | |
| Смотреть
|
Студия | 8 очередь. Корпус 4.34.4 IV кв. 2023 |
Этаж 5, 63 | 24,31 м2 | Запросить цену | |
| Смотреть
|
Студия | 10 очередь. Корпус 4.2 I кв. 2024 |
Этаж 5 | 24,67 м2 | Запросить цену | |
| Смотреть
|
Студия | 8 очередь. Корпус 4.34.4 IV кв. 2023 |
Этаж 2, 4, 5, 6, 8, 93, 7 | 26,41 м2 | Запросить цену | |
| Смотреть
|
Студия | 10 очередь. Корпус 4.2 I кв. 2024 |
Этаж 2 | 30,70 м2 | Запросить цену | |
| Смотреть
|
Студия | 10 очередь. Корпус 4.2 I кв. 2024 |
Этаж 2 | 30,73 м2 | Запросить цену | |
| Смотреть
|
Студия | 10 очередь. Корпус 4.2 I кв. 2024 |
Этаж 6, 8, 95 | 30,29 м2 | Запросить цену | |
| Смотреть
|
Студия | 10 очередь. Корпус 4.2 I кв. 2024 |
Этаж 3, 4, 8, 957 | 30,33 м2 | Запросить цену | |
| Смотреть
|
Студия | 10 очередь. Корпус 4.2 I кв. 2024 |
Этаж 65 | 30,38 м2 | Запросить цену | |
| Смотреть
|
Студия | 7 очередь. Корпус 4.1 Сдан |
Этаж 6 | 24,62 м2 | Запросить цену | |
| Смотреть
|
Студия | 7 очередь. Корпус 4.34.4 III кв. 2023 |
Этаж 53, 7 | 27,99 м2 | Запросить цену | |
| Смотреть
|
Студия | 7 очередь. Корпус 4.34.4 III кв. 2023 |
Этаж 83 | 28,28 м2 | Запросить цену | |
| Смотреть
|
Студия | 7 очередь. Корпус 4.34.4 III кв. 2023 |
Этаж 5, 6, 8, 93, 7 | 30,08 м2 | Запросить цену | |
| Смотреть
|
Студия | 8 очередь. Корпус 4.4 IV кв. 2023 |
Этаж 1 | 24,63 м2 | Запросить цену | |
| Смотреть
|
Студия | 8 очередь. Корпус 4.34.4 IV кв. 2023 |
Этаж 2, 4, 5, 63, 7 | 27,99 м2 | Запросить цену | |
| Смотреть
|
Студия | 7 очередь. Корпус 4.34.4 III кв. 2023 |
Этаж 1 | 26,81 м2 | Запросить цену | |
| Смотреть
|
Студия | 7 очередь. Корпус 4.34.4 III кв. 2023 |
Этаж 5, 6, 93, 7 | 30,39 м2 | Запросить цену | |
| Смотреть
|
Студия | 8 очередь. Корпус 4.34.4 IV кв. 2023 |
Этаж 4, 5, 6, 83, 7 | 28,28 м2 | Запросить цену | |
| Смотреть
|
Студия | 5 очередь. Корпус 31 Сдан |
Этаж 1 | 26,43 м2 | Запросить цену | |
| Смотреть
|
Студия | 8 очередь. Корпус 4.34.4 IV кв. 2023 |
Этаж 2, 4, 5, 6, 8, 93, 7 | 30,08 м2 | Запросить цену | |
| Смотреть
|
Студия | 8 очередь. Корпус 4.34.4 IV кв. 2023 |
Этаж 1 | 26,81 м2 | Запросить цену | |
| Смотреть
|
Студия | 8 очередь. Корпус 4.34.4 IV кв. 2023 |
Этаж 2, 4, 5, 6, 93, 7 | 30,39 м2 | Запросить цену | |
| Смотреть
|
Студия | 7 очередь. Корпус 4.34.4 III кв. 2023 |
Этаж 1 | 28,31 м2 | Запросить цену | |
| Смотреть
|
Студия | 7 очередь. Корпус 4.34.4 III кв. 2023 |
Этаж 1 | 28,60 м2 | Запросить цену | |
| Смотреть
|
Студия | 8 очередь. Корпус 4.34.4 IV кв. 2023 |
Этаж 1 | 28,31 м2 | Запросить цену | |
| Смотреть
|
Студия | 7 очередь. Корпус 4.34.4 III кв. 2023 |
Этаж 1 | 30,44 м2 | Запросить цену | |
| Смотреть
|
Студия | 8 очередь. Корпус 4.34.4 IV кв. 2023 |
Этаж 1 | 28,60 м2 | Запросить цену | |
| Смотреть
|
Студия | 7 очередь. Корпус 4.34.4 III кв. 2023 |
Этаж 1 | 30,81 м2 | Запросить цену | |
| Смотреть
|
Студия | 7 очередь. Корпус 4.1 Сдан |
Этаж 2, 853, 7 | 30,21 м2 | Запросить цену | |
| Смотреть
|
Студия | 7 очередь. Корпус 4.1 Сдан |
Этаж 53, 7 | 30,40 м2 | Запросить цену | |
| Смотреть
|
Студия | 8 очередь. Корпус 4.34.4 IV кв. 2023 |
Этаж 1 | 30,44 м2 | Запросить цену | |
| Смотреть
|
Студия | 6 очередь. Корпус 3331 Сдан |
Этаж 1 | 30,56 м2 | Запросить цену | |
| Смотреть
|
Студия | 5 очередь. Корпус 3331 Сдан |
Этаж 1 | 30,56 м2 | Запросить цену | |
| Смотреть
|
Студия | 8 очередь. Корпус 4.34.4 IV кв. 2023 |
Этаж 1 | 30,81 м2 | Запросить цену | |
| Смотреть
|
Студия | 5 очередь. Корпус 31 Сдан |
Этаж 2 | 30,00 м2 | Запросить цену | |
| Смотреть
|
Студия | 7 очередь. Корпус 4.1 Сдан |
Этаж 1 | 27,86 м2 | Запросить цену | |
| Смотреть
|
Студия | 7 очередь. Корпус 4.1 Сдан |
Этаж 2, 6, 93, 7 | 31,78 м2 | Запросить цену | |
1-комнатные |
|
|
||||
| Смотреть
|
1 к.кв. | 10 очередь. Корпус 4.2 I кв. 2024 |
Этаж 3, 95 | 30,83 м2 | Запросить цену | |
| Смотреть
|
1 к.кв. | 10 очередь. Корпус 4.2 I кв. 2024 |
Этаж 2 | 31,27 м2 | Запросить цену | |
| Смотреть
|
1 к.кв. | 7 очередь. Корпус 4.34.4 III кв. 2023 |
Этаж 2, 5, 6, 8, 93, 7 | 35,98 м2 | Запросить цену | |
| Показать всеСмотреть
|
1 к.кв. | 5 очередь. Корпус 31 Сдан |
Этаж 1 | 33,39 м2 | Запросить цену | |
| Смотреть
|
1 к.кв. | 8 очередь. Корпус 4.34.4 IV кв. 2023 |
Этаж 5, 6 | 35,98 м2 | Запросить цену | |
| Смотреть
|
1 к.кв. | 7 очередь. Корпус 4.34.4 III кв. 2023 |
Этаж 5, 6, 8, 93 | 37,95 м2 | Запросить цену | |
| Смотреть
|
1 к.кв. | 6 очередь. Корпус 3331 Сдан |
Этаж 1 | 33,97 м2 | Запросить цену | |
| Смотреть
|
1 к.кв. | 5 очередь. Корпус 3331 Сдан |
Этаж 1 | 33,97 м2 | Запросить цену | |
| Смотреть
|
1 к.кв. | 7 очередь. Корпус 4.34.4 III кв. 2023 |
Этаж 1 | 34,12 м2 | Запросить цену | |
| Смотреть
|
1 к.кв. | 7 очередь. Корпус 4.34.4 III кв. 2023 |
Этаж 2, 5, 6, 8, 93 | 38,50 м2 | Запросить цену | |
| Смотреть
|
1 к.кв. | 5 очередь. Корпус 31 Сдан |
Этаж 1 | 34,72 м2 | Запросить цену | |
| Смотреть
|
1 к.кв. | 6 очередь. Корпус 323330 Сдан |
Этаж 2 | 33,64 м2 | Запросить цену | |
| Смотреть
|
1 к.кв. | 7 очередь. Корпус 4.34.4 III кв. 2023 |
Этаж 5, 8, 93 | 39,25 м2 | Запросить цену | |
| Смотреть
|
1 к.кв. | 8 очередь. Корпус 4.34.4 IV кв. 2023 |
Этаж 2, 5, 63, 7 | 37,95 м2 | Запросить цену | |
| Смотреть
|
1 к.кв. | 7 очередь. Корпус 4.34.4 III кв. 2023 |
Этаж 2, 4, 5, 6, 8, 93, 7 | 39,96 м2 | Запросить цену | |
| Смотреть
|
1 к.кв. | 8 очередь. Корпус 4.34.4 IV кв. 2023 |
Этаж 2, 4, 5, 6, 83, 7 | 38,50 м2 | Запросить цену | |
| Смотреть
|
1 к.кв. | 5 очередь. Корпус 3130 Сдан |
Этаж 1 | 35,80 м2 | Запросить цену | |
| Смотреть
|
1 к.кв. | 5 очередь. Корпус 3130 Сдан |
Этаж 1 | 35,80 м2 | Запросить цену | |
| Смотреть
|
1 к.кв. | 7 очередь. Корпус 4.34.4 III кв. 2023 |
Этаж 1 | 36,39 м2 | Запросить цену | |
| Смотреть
|
1 к.кв. | 8 очередь. Корпус 4.34.4 IV кв. 2023 |
Этаж 2, 5, 6, 9 | 39,25 м2 | Запросить цену | |
| Смотреть
|
1 к.кв. | 6 очередь. Корпус 323130 Сдан |
Этаж 23 | 35,48 м2 | Запросить цену | |
| Смотреть
|
1 к.кв. | 5 очередь. Корпус 323130 Сдан |
Этаж 2 | 35,48 м2 | Запросить цену | |
| Смотреть
|
1 к.кв. | 7 очередь. Корпус 4.1 Сдан |
Этаж 9 | 36,59 м2 | Запросить цену | |
| Смотреть
|
1 к.кв. | 8 очередь. Корпус 4.34.4 IV кв. 2023 |
Этаж 1 | 36,39 м2 | Запросить цену | |
| Смотреть
|
1 к.кв. | 5 очередь. Корпус 30 Сдан |
Этаж 3 | 33,07 м2 | Запросить цену | |
| Смотреть
|
1 к.кв. | 7 очередь. Корпус 4.34.4 III кв. 2023 |
Этаж 1 | 38,34 м2 | Запросить цену | |
| Смотреть
|
1 к.кв. | 6 очередь. Корпус 3231 Сдан |
Этаж 1 | 38,37 м2 | Запросить цену | |
| Смотреть
|
1 к.кв. | 5 очередь. Корпус 3231 Сдан |
Этаж 1 | 38,37 м2 | Запросить цену | |
| Смотреть
|
1 к.кв. | 6 очередь. Корпус 323330 Сдан |
Этаж 3 | 33,64 м2 | Запросить цену | |
| Смотреть
|
1 к.кв. | 5 очередь. Корпус 323330 Сдан |
Этаж 3 | 33,64 м2 | Запросить цену | |
| Смотреть
|
1 к.кв. | 6 очередь. Корпус 33 Сдан |
Этаж 3 | 34,00 м2 | Запросить цену | |
| Смотреть
|
1 к.кв. | 5 очередь. Корпус 30 Сдан |
Этаж 3 | 34,17 м2 | Запросить цену | |
| Смотреть
|
1 к.кв. | 5 очередь. Корпус 30 Сдан |
Этаж 3 | 34,26 м2 | Запросить цену | |
| Смотреть
|
1 к.кв. | 7 очередь. Корпус 4.34.4 III кв. 2023 |
Этаж 1 | 39,20 м2 | Запросить цену | |
| Смотреть
|
1 к.кв. | 8 очередь. Корпус 4.34.4 IV кв. 2023 |
Этаж 1 | 38,34 м2 | Запросить цену | |
| Смотреть
|
1 к.кв. | 7 очередь. Корпус 4.34.4 III кв. 2023 |
Этаж 1 | 39,72 м2 | Запросить цену | |
| Смотреть
|
1 к.кв. | 7 очередь. Корпус 4.34.4 III кв. 2023 |
Этаж 2, 4, 5, 6, 93, 7 | 44,52 м2 | Запросить цену | |
| Смотреть
|
1 к.кв. | 5 очередь. Корпус 323130 Сдан |
Этаж 3 | 35,48 м2 | Запросить цену | |
| Смотреть
|
1 к.кв. | 8 очередь. Корпус 4.34.4 IV кв. 2023 |
Этаж 1 | 39,20 м2 | Запросить цену | |
| Смотреть
|
1 к.кв. | 8 очередь. Корпус 4.34.4 IV кв. 2023 |
Этаж 1 | 39,72 м2 | Запросить цену | |
| Смотреть
|
1 к.кв. | 7 очередь. Корпус 4.34.4 III кв. 2023 |
Этаж 1 | 45,02 м2 | Запросить цену | |
| Смотреть
|
1 к.кв. | 7 очередь. Корпус 4.1 Сдан |
Этаж 5, 63, 7 | 44,82 м2 | Запросить цену | |
Евродвушки |
|
|
||||
| Смотреть
|
Евродвушка | 10 очередь. Корпус 4.2 I кв. 2024 |
Этаж 5 | 37,06 м2 | Запросить цену | |
| Смотреть
|
Евродвушка | 8 очередь. Корпус 4.34.4 IV кв. 2023 |
Этаж 1 | 34,12 м2 | Запросить цену | |
| Смотреть
|
Евродвушка | 10 очередь. Корпус 4.2 I кв. 2024 |
Этаж 2 | 45,94 м2 | Запросить цену | |
| Показать всеСмотреть
|
Евродвушка | 8 очередь. Корпус 4.34.4 IV кв. 2023 |
Этаж 2, 4, 5, 6, 8, 93 | 39,96 м2 | Запросить цену | |
| Смотреть
|
Евродвушка | 10 очередь. Корпус 4.2 I кв. 2024 |
Этаж 3, 4, 6, 8, 957 | 45,43 м2 | Запросить цену | |
| Смотреть
|
Евродвушка | 8 очередь. Корпус 4.34.4 IV кв. 2023 |
Этаж 2, 5, 6, 8, 93 | 44,52 м2 | Запросить цену | |
| Смотреть
|
Евродвушка | 8 очередь. Корпус 4.34.4 IV кв. 2023 |
Этаж 1 | 45,02 м2 | Запросить цену | |
2-комнатные |
|
|
||||
| Смотреть
|
2 к.кв. | 10 очередь. Корпус 4.24.1 I кв. 2024 |
Этаж 37 | 55,54 м2 | Запросить цену | |
| Смотреть
|
2 к.кв. | 7 очередь. Корпус 4.1 Сдан |
Этаж 97 | 55,79 м2 | Запросить цену | |
| Смотреть
|
2 к.кв. | 7 очередь. Корпус 4.24.1 Сдан |
Этаж 5 | 55,54 м2 | Запросить цену | |
| Показать всеСмотреть
|
2 к.кв. | 6 очередь. Корпус 3231 Сдан |
Этаж 1 | 57,25 м2 | Запросить цену | |
| Смотреть
|
2 к.кв. | 5 очередь. Корпус 3231 Сдан |
Этаж 1 | 57,25 м2 | Запросить цену | |
| Смотреть
|
2 к.кв. | 7 очередь. Корпус 4.34.4 III кв. 2023 |
Этаж 4, 5, 6, 93, 7 | 67,22 м2 | Запросить цену | |
| Смотреть
|
2 к.кв. | 6 очередь. Корпус 323130 Сдан |
Этаж 2 | 56,93 м2 | Запросить цену | |
| Смотреть
|
2 к.кв. | 5 очередь. Корпус 323130 Сдан |
Этаж 2 | 56,93 м2 | Запросить цену | |
| Смотреть
|
2 к.кв. | 5 очередь. Корпус 323130 Сдан |
Этаж 2 | 56,93 м2 | Запросить цену | |
| Смотреть
|
2 к.кв. | 8 очередь. Корпус 4.34.4 IV кв. 2023 |
Этаж 5, 6, 8, 93, 7 | 67,22 м2 | Запросить цену | |
| Смотреть
|
2 к.кв. | 7 очередь. Корпус 4.34.4 III кв. 2023 |
Этаж 1 | 68,18 м2 | Запросить цену | |
| Смотреть
|
2 к.кв. | 8 очередь. Корпус 4.34.4 IV кв. 2023 |
Этаж 1 | 68,18 м2 | Запросить цену | |
Евротрёшки |
|
|
||||
| Смотреть
|
Евротрёшка | 10 очередь. Корпус 4.2 I кв. 2024 |
Этаж 2 | 56,58 м2 | Запросить цену | |
| Смотреть
|
Евротрёшка | 10 очередь. Корпус 4.2 I кв. 2024 |
Этаж 3, 4, 6, 8, 95 | 55,93 м2 | Запросить цену | |
Графики
Отзывы на ЖК «Ново-Антропшино»
Если вы являетесь представитем застройщика и хотите отвечать на отзывы, то напишите на info@novostroikispb.ru





























































